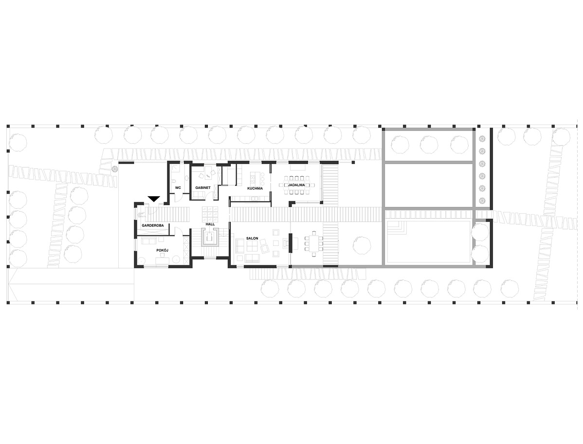
Projekt domu jednorodzinnego w Chybach
DATA REALIZACJI: 01.2008
ARCHITEKCI:
OPIS PROJEKTU:
Projekt drugiego domu jednorodzinnego w Chybach >>> Projekt koncepcyjny
DATA REALIZACJI: 01.2008
Projekt drugiego domu jednorodzinnego w Chybach >>> Projekt koncepcyjny